行業資訊
市政設計院是如何繪制道路路線工程圖的?
在道路工程勘測、設計、施工中,工程測量人員經常需要繪制道路路線的工程圖,以指導工程的建設。道路路線工程圖主要包括路線平面圖、道路縱斷面圖和橫斷面圖。本章主要介紹道路路線工程圖、路線縱斷面圖和路線橫斷面圖的繪制方法。
1 、道路繪圖基本知識
在道路工程測量中,需要根據測量的數據,繪制出路線平面圖、道路的縱斷面圖、道路的橫斷面圖,作為道路設計和施工的依據。用AutoCAD繪制道路的縱、橫斷面圖,首先要確定圖紙的大小、比例尺、線形、線寬、文字高度、尺寸標注的式樣等內容。
2 、圖幅
圖幅是指圖紙的幅面大小,也就是指圖紙本身的大小規格,圖框是圖紙上表示繪圖范圍的邊線。每項工程都會有一整套的圖紙,為便于裝訂批、保存和合理使用圖紙,國家對圖紙幅面進行了規定,見表11-1。表中尺寸代號如圖11-1所示。
表1 圖幅及圖框尺寸
圖幅代號 尺寸代號 | A0 | A1 | A2 | A3 | A4 |
b×l | 841×1189 | 594×841 | 420×594 | 297×420 | 210×297 |
a | 35 | 35 | 35 | 35 | 25 |
c | 10 | 10 | 10 | 10 | 10 |
根據需要,圖紙幅面的長邊可以加長,但短邊不得加長。長邊加長的尺寸應符合有關規定,長邊加長時,圖幅A0、A2、A4應為150mm的整倍數;圖幅A1、A3應為210mm的整倍數。

3 、圖線
工程圖是線框圖,圖中的信息都是由線條表示的。為了反映圖中不同的內容和分清主次,必須采用不同的線型和線寬來表示。圖紙上的實線、虛線、點劃線、雙點劃線、折斷線、波浪線等線型適用于不同的場合,同時應符合國家標準的有關規定。圖線的寬度應根據圖的復雜程度及比例大小,從《道路工程制圖標準》規定的線寬系列:0.13mm、0.18mm、0.25mm、0.35mm、0.5mm、0.7mm、1.0mm、1.4mm、2.0mm中選取。基本線寬(b )應根據圖樣比例和復雜程度確定。
圖線有粗、中、細之分。在同一張圖紙內,相同比例的圖樣應采用相同的線寬。在繪圖過程中,每張圖上的圖線線寬不宜超過3 種,通常根據所表達的對象的復雜程度、比例的大小來確定基本線寬。線寬組合宜符合表11-2的規定。粗線的寬度若為b,則中線的寬度為0.5b,細線的寬度為0.35b合理的線型比例應當與打印比例保持對應關系。當打印輸出比例為1:n時,線型比例應當設置為n。
表2 線寬組合
線寬類型 | 線寬系列(mm) | ||||
b | 1.4 | 1.0 | 0.7 | 0.5 | 0.35 |
0.5b | 0.7 | 0.5 | 0.35 | 0.25 | 0.25 |
0.25b | 0.35 | 0.25 | 0.18(0.2) | 0.13(0.15) | 0.13(0.15) |
圖紙圖框和標題欄的線寬根據圖紙幅面的大小不同二而不同,具體詳 見表11-3。
表11-3 圖紙圖框和標題欄線寬(單位:mm)
圖紙幅面 | 圖框線 | 標題欄外框線 | 標題欄分割線 |
A0 ,A1 | 1.4 | 0.7 | 0.35 |
A2 ,A3,A4 | 1.0 | 0.7 | 0.35 |
4 、文字
文字、數字、字母和符號是工程圖的重要組成部分。采用規定的字體,規定的大小。《道路工程制圖標準》規定圖中漢字應采用長仿宋體字(又稱工程字),并采用國家正式公布的簡化字,除有特殊要求外,不得采用繁體字,漢字書寫要求采用從左向右、橫向書寫的格式。
在AutoCAD 環境中,漢字字體通常采用Windows系統所帶的TrueType字體“仿宋— GB 2312"。在有些圖紙中,漢字字體也可采用符合國標的形編譯字體。所謂形編譯字體是指符合國標的類似手寫仿宋體。常見的有Hzdx、shx、Hztxt、shx、Khz、shx等。
圖紙上常見的文字高度一般有7 種3.5mm、5mm、7mm、10mm、14mm、20mm。文字的寬度比例,即寬高比一般設置為2:3,文字的間距應大于1.5倍的字高,且漢字高度不宜小于3.5mm。
當圖樣中有需要說明的事項時,需在圖樣所在圖紙的右下角圖標上方處加以敘述。該部分文字應采用“注”字表明,“注”寫在敘述事項的左上角,每條“注”的結尾應標句號。說明事項需要劃分層次時,第一、二、三層次的編號應分別用阿拉伯數字、帶括號的阿拉伯數字及帶圓圈的阿拉伯數字標注。當表示數量時,應采用阿拉伯數字書寫。如一千零五十米應寫成 1050m,十二小時應寫成12h。分數不得用數字與漢字混合表示,如:五分之一應寫成1/5,不得寫成5分之l。不夠整數位的小數,小數點前應加0定位。
5 、比例
道路工程具有組成復雜、長寬高三項尺寸相差懸殊、形狀受地形影響大等特點,因此它的圖示方法與一般工程不完全相同。它的平面圖就是一個帶狀地形圖,縱向斷面圖是沿公路中心線的縱剖面圖,橫斷面是道路中心線法線方向的斷面圖,根據這三種圖所表示的內容的差異,通常采用的繪圖比例各不同,繪圖比例的選擇,應遵循圖面布置合理、均勻、美觀的原則,使繪出的圖形有較好的可讀性。
6 、路線平面圖的繪制
路線平面圖是沿道路路線方向發展的地形圖。其作用是表達路線的方向、平面線型(直線和轉彎方向)以及路線兩側一定范圍內的地形、地物情況,以及結構物的平面位置。道路路線具有狹而長的特點,一般無法把整條路線繪在一張圖紙內。通常分段畫在多張圖紙上,每張圖紙上注明序號、張數、指北針和拼接標記。其內容主要包括地形、路線兩部分。
7 、地形部分
(1 )比例
路線平面圖應根據地形的起伏情況采用相應的比例。城鎮區一般采用1 :500或1:1000,山嶺重丘區一般采用1:2000,微丘和平原區一般采用1:5000。
(2 )方位
為了表示路線所在地區的方位和路線的走向,在路線平面圖上應畫出指北針或坐標網。指北針箭頭所指為正北方向。坐標方位的規定同地形圖,即X 軸向為南北方向,向北為正;Y軸向為東西方向,向東為正。
(3 )地形
路線平面圖中地形起伏情況主要用等高線表示,等高線能反映地面的實際高度、起伏狀態,具有一定的立體感,能滿足圖上分析研究地形的需要。等高線愈密,表示地勢愈陡,等高線愈疏,表示地勢愈平坦。
(4 )地物
地物按比例縮小畫在圖紙上時,只能用簡化的規定符號表示。如在路線平面圖中地面上的地物如河流、房屋、道路、橋梁、電力線、植被等,都是按規定圖例繪制的。常用的地物圖例基本與地形圖中的地物圖例相同。
8 、路線部分
(1 )設計路線
在《道路工程制圖標準》中規定,道路中心線應采用細點劃線表示,路基邊緣線應該采用粗實線表示。由于公路路線平面圖所采用的比例太小,公路的寬度無法按實際尺寸畫出,所以在路線平面圖中,設計路線是用粗實線沿著道路中心表示的。
(2 )里程樁
為了清楚的看出路線的總長和各段之間的長度,一般在道路中心線上從起點到終點,沿前進方向的左側注寫里程樁(KM )。里程樁分公里樁和百米樁兩種。在符號上面注寫K1,即表示距路線起點1km,右側注寫百米樁,用樁位,用字頭朝向前進方向的阿拉伯數字表示百米數,注寫在短線的端部。同時也可均采用垂直于路線的細短線表示公里樁和百米樁,如若樁號為K1+200,則表示距路線起點1.2km。
(3 )平曲線
道路路線在平面上是由直線段和曲線段組成的,在路線的轉折處應設平曲線。最常見的較簡單的平曲線為圓曲線,其主要基本幾何要素有:①交點 JD,是路線的兩直線段的理論交點;②轉折角a,是路線前進時向左(az)或向右(ay)偏轉的角度;③圓曲線半徑 R;④切線長T,是切點與交角點之間的長度;⑤外矢距E,是曲線中點到交角點的距離;⑥曲線長L,是曲線兩切點之間的弧長。
在路線平面圖中,轉折處應注寫交點代號并依次編號,如JD2 表示第2個交點。還要注出曲線段的起點ZY(直圓點)、中點Qz(曲中點)、終點YZ(圓直點)的位置。為了將路線上各段平曲線的幾何要素值表示清楚,一般還應在圖中的適當位置列出平曲線要素表。如果設置緩和曲線,則將緩和曲線與前、后段直線的切點分別標記為ZH(直緩點)和HZ(緩直點);將圓曲線與前、后段緩和曲線的切點分別標記為HY(緩圓點)和YH(圓緩點)。
9 、用AutoCAD 繪制路線平面圖的方法
路線平面圖的繪制包括兩部分內容,一部分是地形圖的繪制;另一部分是在地形圖上繪制路線中心線。地形圖的繪制在第9章中已經講過,這里主要介紹路線中心線的繪制方法。
(1)數據準備
在繪制路線中心線前,要根據道路設計人員定出的交點和轉角數據,計算出平面曲線的相關要素,即圓曲線的半徑R ,切線長T,曲線長L,外矢距E。計算結果如表11-4所 示。
表4 路面平曲線要素參數
交點 | a | R | T | E | |
az | ay | ||||
JD1 | 39°21′21″ | 150 | 53.64 | 9.30 | |
JD2 | 32°48′36″ | 150 | 44.16 | 6.37 |
則有關設計數據如下:
路線導線的起始點、交點的坐標以及轉折角、圓曲線半徑、曲線的類型如下:
QD(1105.353,518.977)為路線的起點。
JD1(1338.254 ,455.322),az=39°21′21″ ,R =150,T=53.64,圓曲線。
JD2(1520.786 ,530.204),ay=32°48′36″ ,R =150,T=44.16,圓曲線。
ZD(1710.756,460.747)為路線的終點。
在實際工作中路線導線的坐標數據都是用Excel 表格存放。這樣簡化了在繪圖時輸入坐標的麻煩,在Excel表格中編輯導線點坐標對,如圖11-2 所示,選中D2 欄,輸入公式“C2&" ,"&B2”,按回車鍵,系統自動生成了所需要的坐標對。選中 D2欄,將光標指向第二欄右下角,系統出現黑色小十字標記,按住鼠標左鍵向下拖動十字標記,一直到ZD,D2欄就自動生成了對調后的各交點的坐標對,并將他們依次復制下來。

(2 )設置圖形單位
進入繪圖工作界面后,可按照提供的相應命令來完成圖形單位的設置。具體操作步驟如下:
1 )選擇“格式”菜單下的“單位”命令或直接在命令行中輸入“Units”按回車鍵,系統彈出“圖形單位”對話框。
2 )在“長度”選項組中,在“類型”下拉列表框中選擇“小數”,在“精度”下拉列表框中選擇0。
3 )在“角度”選項組中,在“類型”下拉列表框中選擇“十進制讀數”,在“精度”設為“0.00”。
4 )對測角的“方向控制”,就以AutoCAD2008的默認設置,圖形正右側(向東的方向)為0° 。
5 )在“插入比例”選項組中,用于縮放插入內容的單位設為“毫米”。
其實以上這些設置在繪制地形圖前都已經設置完畢。
(3 )設置圖層和文字式樣
在繪制道路中線時要在地形圖圖層設置的基礎上,增加路線中線層(zhongxian ),顏色為紅色,線寬設為1.0(粗實線);路線導線層(daoxian),顏色為白,線寬默認;標注線層(bzhxian),線寬0.25(細實線);文字注釋層(wenzi),文字式樣設置為字體是txt.shx ,大字體gbcbig.shx ,高度為10,寬高比為0.7。
(4 )繪制路線中心線
1 )繪制路線導線:將“daoxian'’圖層置為當前層,使用多段線命令Spline來繪制, 各導線點的坐標不用從鍵盤輸入,而是用圖11-3所示Excel表中D列的坐標數據,即在 AutoCAD執行Pline命令,要求輸入起點時,將Excel表中D2列的坐標數據復制后粘貼于此,AutoCAD自動依次讀取各點坐標值,繪制出一個多段線。執行過程如下:
命令: _pline
指定起點: 1105.353 ,518.977
當前線寬為0
指定下一個點或[ 圓弧(A)/半寬(H)/長度(L)/放棄(U)/寬度(W)]: 1338.254,455.322
指定下一點或[ 圓弧(A)/閉合(C)/半寬(H)/長度(L)/放棄(U)/寬度(W)]: 1520.786,530.204
指定下一點或[ 圓弧(A)/閉合(C)/半寬(H)/長度(L)/放棄(U)/寬度(W)]: 1710.756,460.747
指定下一點或[ 圓弧(A)/閉合(C)/半寬(H)/長度(L)/放棄(U)/寬度(W)]:(按Esc或回車鍵退出)。
2 )確定平曲線上的主點:路線在JDl,JD2處的轉彎都是圓曲線,要繪出這些曲線,首先要定出曲線上的主點位置。以JDl處為例,介紹確定主點位置的方法。新建一個“assist”(輔助)圖層,顏色設為藍色,將其置為當前層。
① 繪制 JDl處轉折角平分線JDlP;
② 確定 QZ點:從JDl開始,沿JDlP向P方向量取外矢距的長度,此點即為QZ點。具體操作如下:
命令:_line 指定第一點:(用鼠標捕捉JDl點,并拾取,)
指定下一點或[ 放棄(U)]:9.30(用鼠標捕捉P點,不拾取,輸入長度9.30,即得到QZ點。)
③ 確定 YZ點:將“zhongxian”層置為當前層。用繪制圓弧命令Arc,用“起點、圓 心、角度”選項,起點為QZ點,從QZ點向P量取圓曲線的半徑300,得到圓心,所對應的圓心角是az/2=19.6779°, 這樣繪出的圓弧的另一個端點就是YH 點。具體操作如下:
執行“繪圖”菜單下的“圓弧”命令中的“起點、圓心、角度”命令,命令行提示:
命令: _arc 指定圓弧的起點或 [圓心(C)]: (用鼠標捕捉QZ點,并拾取)
指定圓弧的第二個點或 [圓心(C)/端點(E)]: (輸入c,指定圓弧的圓心)
指定圓弧的圓心: 300(用鼠標捕捉P點,但不拾取,輸入長度即圓半徑及=150)
指定圓弧的端點或 [角度(A)/弦長(L)]: (輸入a,以便輸入圓弧夾角)
指定包含角: 輸入19.6779,則繪出的圓弧末端即YZ點。
③ 確定ZY點:ZY點與YZ點相對于角平分線DJlP對稱,所以可用鏡像的方法得到ZY點。
這樣就確定了第一個交角點JDl 處的平曲線各主點。用相同的操作方法,確定出JD2處的平曲線的各主點。將點樣式設置成“十字”。刪除所有的輔助線即得到如圖11-3 所示的圖形。

3)連接路線中線的直接段:曲線繪制完成以后,使用Line命令,連接路線中線的各直線段。
經過以上步驟,路線中線就繪制完成。這樣繪出的路線是一個個的圖形單元,AutoCAD中提供了對象合并的功能,但是還有局限性,只能合并同一類型的圖形單元,無法將直線、樣條曲線和圓弧合并為一個對象。
(4)繪制特征點位置線、里程樁線、百米樁線并標注文字:
1)繪制特征點位置線:設置“bzhuxian”層為當前層。用偏移命令,將路線中線向上偏移5個圖形單位。
用繪制直線命令Line,在路線上的每一個主點處繪制短直線,分別與路線導線和上側的偏移線垂直相交。以ZY點上的位置線為例:
命令:line指定第一點:(用鼠標拾取ZH點)
指定下一點或[放棄(U)]:(用鼠標在偏移線上拾取垂足點)
指定下一點或[放棄(U)]:(按Esc或回車鍵退出)
用同樣的方法在其他各主點繪出位置線。
2)繪制公里樁、百米樁標注線:將路線導線向下方分別偏移5個單位和15個單位,得到兩條偏移線。路線各交點的里程已知,以起始點QD(QD的里程是整公里)為例,用繪制多段命令分別繪制公里樁、百米樁標注線。
命令:_pline
指定起點:(用鼠標拾取路線的起始點QD)
當前線寬為0.0000
指定下一個點或[圓弧(A)/半寬(H)/長度(L)/放棄(U)/寬度(W)]: (用鼠標拾取偏移15個單位的線的起始點)
指定下一點或[圓弧(A)/半寬(H)/長度(L)/放棄(U)/寬度(W)]: (按Esc或回車鍵退出)
用偏移命令對剛繪制的百米樁標志線進行偏移,偏移距離為100,在同一條線段上可繼續偏移,繪出其他的百米樁線。但經過交點后,就需要在交點處,繪制與下一線段相垂直的標志線,再計算下一個百米樁距此應偏移的距離,然后進行偏移。依次由左向右繪制出各百米標志線。
3)編輯標志線和位置線:對各標志線和位置線進行剪切、延伸,使公里樁長度為15個單位,主點位置線和百米樁長度為5個單位。最后刪除路線導線的偏移線等輔助線,只留下路線中線、路線導線、主點位置線、公里樁標志線和百米樁標志線。
4)繪制公里樁符號和交角點符號:公里樁符號用繪制圓環Donut命令,內徑是0,外徑是5。交角點符號用繪制圓的命令Circle,直徑為3,圓心在交點上。對小圓圈內的部分進行修剪。
5)標注文字:將圖形縮小,比例因子為0.5,把“wenzi”圖層置為當前圖層。
命令:_dtext
當前文字樣式:LUXIANl 當前文字高度:7.00 注釋性:否
指定文字的起點或 [對正(J)/樣式(S)]: (在合適的位置點擊左鍵)
指定文字的旋轉角度 <0>:-90(此處因為公里樁和百米樁都在中心線的下方,因此文字旋轉-90°)
然后在屏幕上閃動的光標處輸入K1,用鼠標點擊下一個需要標注文字處,光標會在該處閃動,繼續輸入文字,將所有的文字標注完畢,按“Esc'’退出文字輸入狀態。若標注的文字大小方向不同,可選用不同高度和旋轉角度,分批標注。這樣標注的文字位置和角度有些可能不太合適,可利用移動和旋轉命令進行修改。如圖11-4 所示,即完成路 線平面圖的繪制。

(5 )平曲線要素表的繪制:在道路平面圖的右上角,需要插入平曲線要素列表,具體操作步驟詳見見第6章。以表格的右上角為基點,將繪制好的表格移動到路線平面圖的右上角。
10 、道路縱斷面圖的繪制
路線的縱斷面圖是表示路線中心的地面起伏狀況以及路線的縱向設計坡度和豎曲線。道路路線的縱斷面圖是用假想的鉛垂剖切面沿著道路的中心線進行縱向剖切。由于道路中心線是由直線和曲線組合而成的,所以縱向剖切面既有平面,又有曲面。為了清晰地表達路線的縱斷面情況,特采用展開的方法,將此縱斷面展平成為一平面,并繪制在圖紙上,即為路線的縱斷面圖。
11 、縱斷面的圖示內容
路線縱斷面圖包括圖樣和資料表兩部分,一般圖樣畫在圖紙的上部,資料表布置在圖紙的下部。 如圖11-5 所示。

(1 )圖樣部分
1 )比例
路線縱斷面圖的橫向長度表示路線的長度(里程),縱向高度表示地面及設計線的標高。由于路線和地形的高程變化比起路線的長度要小得多,為了在路線縱斷面圖上清晰的顯示出高程的變化和設計上的處理,繪制時一般采用縱向比例比橫向比例放大10 倍。橫向比例尺和縱向比例尺的確定要根據實際工程要求選取,如在山嶺地區,橫向比例尺一般選擇1:2000,則與之對應的縱向比例尺選擇1:200;在丘陵和平原地區,由于地形起伏變化較小,所以橫向比例尺一般選擇1:5000,則與之對應的縱向比例尺選擇1:500。
由于路線較長,路線的縱斷面圖一般都有許多張,則在第一張圖的圖標內或左側縱向標尺處應注明縱、橫向所采用的比例尺。
2 )設計線和地面線
在縱斷面圖中,粗實線為公路縱向設計線,是由直線段和豎曲線組成的,它是根據地形起伏和公路等級,按相應的公路工程技術標準而確定的,設計線上各點的標高通常是指路基邊緣的設計高程。不規則的細折線為設計中心線處的地面線,它是根據原地面上沿線各點的實測中心樁高程而繪制的。比較設計線與地面線的相對位置,可確定填挖地段和填挖高度。
3 )豎曲線
在設計線的縱向坡度變更處,即變坡點,應按公路工程技術標準的規定設置豎曲線,以利于汽車平穩的行駛。豎曲線分為凸形和凹形兩種,在圖中分別用“”和 “”符號表示,符號中部的豎線應對準變坡點,豎線兩側標注變坡點的里程樁號和豎曲線中點的高程。符號的水平線兩端應對準豎曲線的起點和終點,水平線上方應標注豎曲線要素值(半徑 R、切線長T、外距E)。
4 )沿線構造物
道路沿線如設有橋梁、涵洞、立交和通道等構造物時,應在其相應設計里程和高程處,按圖例繪制并注明構造物名稱、種類、大小和中心里程樁號。
5 )水準點
沿線設置的水準點,都應按所在里程注在設計線的上方或下方,并標出其編號、高程和路線的相對位置。
(2 )資料表部分
路線縱斷面圖的資料表是與圖樣上下對應布置的,這種表示方法,較好地反映出縱向設計線在各樁號處的高程、填挖方量、地質條件和坡度以及平曲線與豎曲線的配合關系。資料表主要包括以下欄目和內容:
1 )地質概況:根據實測資料,在該欄中注出沿線各段的地質情況,作為修筑道路路基時的地質資料。
2 )高程資料:表中有設計高程和地面高程兩欄,它們應和圖樣互相對應,分別表示設計線和地面線上各點(樁號)的高程。
3 )填挖高度:設計線在地面線下方時需要挖土,設計線在地面線上方時需要填土,挖或填的高度值應是各點(樁號)對應的設計高程與地面高程之差的絕對值。
4 )坡度及坡長:標注設計線各段的縱向坡度和水平長度距離。該欄中的對角線表示坡度方向,左下至右上表示上坡,左上至右下表示下坡,坡度及坡長分注在對角線的上下兩側。該欄中第一格的標注“1.1/65, 表示從K4+865坡段設計縱坡為1.1%,設計長度為65m,此段路線是上坡。
5 )里程樁號:沿線各點的樁號是按測量的里程數值填入的,單位m,樁號從左向右排列。在平曲線的起點、中點、終點和橋涵中心點等處可設置加樁。
6 )直線及平曲線:在路線設計中,豎曲線與平曲線的配合關系,直接影響著汽車行駛的安全性和舒適性,以及道路的排水狀況,故《公路路線設計規范》對路線的平縱配合提出了嚴格的要求。由于道路路線平面圖與縱斷面圖是分別表示的,所以在縱斷面圖的資料表中,以簡約的方式表示出平縱配合關系。在該欄中,以“—”表示直線段;以“︹”、“︺”或“”“”四種圖樣表示平曲線段,其中前兩種表示設置緩和和曲線的情況,后兩種表示不設緩和曲線的情況,圖樣的凸凹表示右轉曲線,下凹表示左轉曲線。
12 、繪制路線縱斷面圖的步驟
繪圖前應設計好比例尺,這里以橫向比例為1 :2000,縱向比例為1:200的縱斷面的繪制為例。
(1 )設置圖層
根據道路縱斷面圖中包括的內容,需要設置“ biaoti”(標題欄)層、“dimian”(地面線)層、“sheji”(設計線)層、“biaozhu”(標注)層等,每一層的線型均為Continuous,線寬各圖層不同。如圖框和設計線線寬為1.0,標題欄用0.7,坡度線用0.35等,為使圖形容易分別,還可將各圖層設置成不同的顏色。
(2 )設置圖形單位和文字式樣
設置方法與本章第一節的設置相同。
(3 )繪制縱斷面的標題欄
將“ biaoti”層置為當前層,先按1:1000比例,從K4+800到K5+275,本幅圖包括的里程數為475m,再加上標題樣左端的文字占的寬度,標題欄底線長繪制505,將標題欄底線依次向上偏移,得到“直線與曲線”、“里程”、“地面高程”、“設計高程”、“坡度”、“土壤質欄”,每一欄的寬度,以填寫項所占尺寸為準,比如“直線與曲線欄”需偏移10,在最后標注文字時,若寬度不合適還可調整。繪制一條垂直線,長度從標題欄底線繪制到頂線,位置距最左端20,作為標題與內容的分界線。
(4 )繪制高程標尺
繪一條垂線,起點在標題欄豎線的頂端,向上繪制,長度20 (代表的高度為2m),將其線寬設置為2.0,然后將該線再向上復制,使其首尾相接,這樣繪出的看起來是一條直線,但卻是兩個圖形對象,將這兩個對象設置成對比度較大的兩種顏色。根據地面高程情況,再將這兩個對象同時向上復制數次,這樣標尺就繪成了。
(5)設置坐標原點
在繪圖前,將外業測繪的數據整理到Excel 表中,如圖11-6 所示,B 列為各地面點的樁號,C列為各地面點的實測高程,D列為各地面點的里程數值,E列為繪圖用的各地面點的坐標值(將里程數值作為橫坐標X,高程值擴大十倍后作為縱坐標Y,在E2欄編輯公式:“=D2&" ,"&C2*10 ”,具體操作前面已經講過)。坐標的原點需設置在標尺的底部,原點橫坐標值是本幅圖最左端的里程數,縱坐標要比實測的所有轉點高程最小值還要小一些,本例中原點坐標為(4800 ,2280)。為了方便用坐標展繪地面線,現將前面繪制的標題欄和標尺等所有圖形對象以標尺底部為基點,移動到Auto CAD 世界坐標系的(4800 ,2280)處。目的是使圖中標尺底部(縱斷面圖的坐標原點)的坐標與Excel 表中計算的坐標一致,可直接輸入各點坐標來繪制地面點。
具體操作方法如下:
命令: _move
選擇對象: ( 框選標尺,回車)
指定基點或[ 位移(D)] <位移>: (用鼠標拾取標尺底端點作為基點)
指定第二個點或< 使用第一個點作為位移>: 4800,2280(輸入坐標,回車即完成坐標原點的設置)。
(6 )繪制地面線
將”dimian”層置為當前層,使用多段線命令pline 繪制地面線。具體操作方法同11.2.3中路線的繪制方法。
命令:_pline
指定起點:4800 ,2314.72(將圖10-9中的E列的坐標值復制并粘貼到此處)
當前線寬為0.0000
指定下一個點或[ 圓弧(A)/閉合(C)/半寬(H)/長度(L)/放棄(U)/寬度(W)]:4830,2314.2
……
指定下上點或[ 圓弧(A)/閉合(C)/半寬(H)/長度(L)/放棄(U)/寬度(W)]:5275.1,2335
指定下一點或[ 圓弧(A)/閉合(C)/半寬(H)/長度(L)/放棄(U)/寬度(W)]:(按Esc鍵或回車鍵退出,即完成地面線的繪制)
(7 )繪制設計線
將“ sheji”層設置為當前層,使用多段線命令Pline繪制設計線。繪制時將各里程樁的里程作為橫坐標 ,各里程樁處的設計高程作為縱坐標。操作步驟與繪制地面線類似,對豎曲線位置,采用三點繪制圓弧的方法,三點依次是豎曲線起點、變坡點位置設計標高處、豎曲線終點。
(8 )繪制豎曲線標志符號
在設計線圖層中,用Line 命令繪制各豎曲線標志符號。
注意:符號中部的豎線的橫坐標就是豎曲線轉點里程,符號的水平線兩端的橫坐標應分別是豎曲線的起點和終點里程。為圖形美觀,各豎線標志符號應大致在同一個高度。
(9 )繪制標題欄中的相關線
在“直線與曲線”欄中,依據路線設計中線各主點的里程繪制。
在“里程樁號”欄中,百米里程位置和曲線的主點位置繪制豎短線為里程樁標志,先繪出最左邊的第一條里程樁標志,然后使用偏移命令,按里程間隔偏移。這樣繪出的標志長短相同。按設計數據,用 Pline命令繪制坡度/坡長線。
(10 )標注文字
本圖要求的比例是1 :2000,前面繪圖是按1:1000的比例尺,先將圖中所有內容全部選中,用scale命令縮小2倍,使繪制的圖形成為所需要的1:2000的圖形,在此比例下開始標注文字,執行“單行文字標注”命令,對大小、方向相同的文字標注,可用鼠標點擊適當的位置,輸入完一處文字,再點擊下一處位置,輸入文字。一次Text命令,可連續多次輸入文字,直到退出命令。不同高度、不同方向的文字需重新輸入Text命令,重新設置文字高度和文字方向,再進行文字輸入,直到將圖中所有文字標注完畢。
(11)標注水準點及橋涵構筑物
橋涵構造物等標注的位置與其樁號對應,對標注符號,先定義圖塊,再利用圖塊插入命令插入。繪制完成的道路總斷面圖 如圖11-5 所示。
13 、道路橫斷面圖的繪制
路線橫斷面圖是在垂直于道路中心線的方向上所作的斷面圖,其作用是表達路線各中心樁處路基橫斷面的形狀和橫向地面高低起伏狀況。
14 、道路橫斷面圖相關知識
在道路橫斷面外業測量中,對每一個需測橫斷面的位置,都要進行測量,測得在橫斷面方向上各變坡點相對于中樁地面的高差,根據外業實測數據,整理得出各里程樁的橫斷面的資料如 表11-5 所示,表中按路線前進的方向分左側、右側。分數的分子表示測段兩端的高差,分母表示測段的水平距離。高差為正表示上坡,為負表示下坡。根據這些數據繪制出各里程橫斷面圖,再根據設計要求,畫出路基斷面設計線,得到一系列的路基橫斷面圖,以此來計算公路的土石方量和作為路基施工的依據。
表7 路線橫斷面測量數據
左側 | 樁號 | 右側 |
…………. | …… | ………… |
-0.6/11.0 -1.8/8.5 -1.6/6.0 | K4+800 | +1.5/4.6 +0.9/4.4 +1.1/5.0 +0.5/10.0 |
-0.5/7.8 -1.2/4.2 -0.8/6.0 | K4+820 | +0.7/7.2 +1.1/4.8 -0.4/7.0 +0.9/6.5 |
……. ……. | …… | ………… |
15 、繪制橫斷面圖的步驟
(1)設置繪圖比例
在繪制道路橫斷面圖時,一般情況下,縱坐標(高差)和橫坐標(路寬)比例是相同的,根據具體情況可選1:100或1:200,在設計前應定好繪圖比例。
(2)設置繪圖環境
圖形單位的設置同前。道路工程制圖中的規定,橫斷面圖的地面線采用細實線。在圖層管理器中,設置“dimian”(地面線)層,線寬為0.25;“tukuang”(圖框線)層,線寬為1.0,線型均為Continuous,同時各層設置成不同的顏色。
(3)繪圖
下面以表11-5的測量數據為例,繪制樁號為K4+800處的道路橫斷面的地面線。
1)繪中線樁:用Line命令畫一條平行與Y軸方向的豎線,作為橫斷面的中心樁。
2 )繪地面樁:由表11-5 中的測量數據可以看出,用Pline 多段線命令,使用相對直角坐標輸入,繪制地面線。
繪制左側地面線部分:
命令:_pline
指定起點:(用鼠標點擊豎線上一點)
當前線寬為0.0000
指定下一個點或[ 圓弧(A)/閉合(C)/半寬(H)/長度(L)/放棄(U)/寬度(W)]:@-6.0,-1.6
指定下一點或[ 圓弧(A)/閉合(C)/半寬(H)/長度(L)/放棄(U)/寬度(W)]:@-8.5,-1.8
指定下一點或[ 圓弧(A)/閉合(C)/半寬(H)/長度(L)/放棄(U)/寬度(W)]:@-11,-0.6
指定下一點或[ 圓弧(A)/閉合(C)/半寬(H)/長度(L)/放棄(U)/寬度(W)]:(按Esc鍵或回車鍵退出)
繪制右側地面線部分:
命令:_pline
制定起點:(用鼠標點擊右側地面線與豎線的交點)
當前線度為0.0000
指定下一個點或[ 圓弧(A)/閉合(C)/半寬(H)/長度(L)/放棄(U)/寬度(W)]:@4.6,1.5
指定下一點或[ 圓弧(A)/閉合(C)/半寬(H)/長度(L)/放棄(U)/寬度(W)]:@4.4,0.9
指定下一點或[ 圓弧(A)/閉合(C)/半寬(H)/長度(L)/放棄(U)/寬度(W)]:@5.0,1.1
指定下一點或[ 圓弧(A)/閉合(C)/半寬(H)/長度(L)/放棄(U)/寬度(W)]:@10,0.5
指定下一點或[ 圓弧(A)/閉合(C)/半寬(H)/長度(L)/放棄(U)/寬度(W)]:(按Esc鍵或回車鍵退出)
3 )縮放圖形:前面在圖形單位設值時,設置的是一個圖形單位代表1mm,上面輸入坐標時,4.4mm距離就直接輸入4.4,也就是4.4mm表示4.4m,很顯然,繪出的圖的比例就是1:1000。而斷面圖要求的繪圖比例是1:200,所以要對上面繪出的圖進行縮放,比例因子為5,也就是將圖放大5倍。1:1000的圖放大5倍,正好是要求的繪圖比例1:200。
4 )標注文字:橫斷面圖中的文字標注內容很少,僅標注中心樁的樁號。在縮放后的圖上標注文字,更容易確定適宜的文字高度,可達到更好標注效果。這里的文字高度選用10,比較合適,當要求的繪圖比例尺發生改變時,最好試一試不同高度的文字的標注效果,最后確定選用的文字高度。最終完成K4+800處的橫斷面圖的繪制,如圖11-6 所示。
注意:在輸入點位時,用的是相對直角坐標系的值是當前點相對于前一個點的橫、縱坐標的改變量。該改變量正好對應左右兩側的距離和高差的數值。但在輸入時,左側的點橫坐標應為負(在距離值前面加“—”),右側的點橫坐標為正(原距離值),高差值與測量數據相同。

采用上述方法,可繼續繪出其他樁號的橫斷面,在同一張圖紙內繪制的路基橫斷面圖,應按里程樁號順序排列,從圖紙的左下方開始,先由下而上,再自左向右排列。同一幅圖中橫斷面的數量,要根據圖幅和繪圖比例計算后確定。若一幅圖中有多個斷面,則要按1 :1000的比例繪出所有的斷面后,再按要求的比例縮放圖形,最后統一標注。再每張路基橫斷面圖的右上角寫明圖紙序號及總張數,再最后一張圖的右下角繪制圖標。
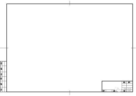
16 、圖框的繪制
繪制圖框時一般要新建一個圖形文件,待圖框繪制完成后,保存為模板,即.dwt 格式的文件,以備使用。現以A3紙(297mm420mm )為例,來講述圖框的繪制法。
17 、圖形元素的繪制
(1 )設置繪圖環境
1 )設置圖幅:用Limits命令設置圖形界限左下角為(0,0),右上角坐標(420,297)。
2 )設置單位及精度:設置方法詳見11.2.3中的設置。
3 )建立圖層:設置“tukuang”(圖框)層,線寬0.7,“fgx”(分割線)層,線寬0.25,線型均為Continuous。“bz”(標注)層,線寬、線型默認。
4 )設置文字樣式:圖框中的文字都是漢字,字體設置為“仿宋—GB2312”,寬度比例為0.7,其他項可以保留默認格式。
(2 )圖框繪制
將“ tukuang”層置為當前層,打開“對象捕捉”,點擊繪圖工具欄中的“矩形”按鈕,命令行提示:
命令: _rectang
指定第一個角點或[ 倒角(C)/標高(E)/圓角(F)/厚度(T)/寬度(W)]: 35,10
指定另一個角點或[ 面積(A)/尺寸(D)/旋轉(R)]: 410,287
繪制圖標外框線(圖標大小35mm ×100mm):
命令:_rectang
指定第一個角點或[ 倒角(C)/標高(E)/圓角(F)/厚度(T)/寬度(W)]:(用鼠標拾取圖框右下角)
指定另一個角點或[ 面積(A)/尺寸(D)/旋轉(R)]: @-100,35
(3 )會簽欄的繪制
會簽欄在圖框的左下角,寬21mm ,高100mm ,會簽欄外框線線寬0.5mm,內外格線線寬0.25mm。將“fgx”層置為當前層,點擊繪圖工具欄中的“矩形”按鈕,命令行提示:
命令:_rectang
指定第一個角點或[ 倒角(C)/標高(E)/圓角(F)/厚度(T)/寬度(W)]:(用鼠標拾取圖框左下角)
指定另一個角點或[ 面積(A)/尺寸(D)/旋轉(R)]:@-21,100
選中剛繪制的會簽欄外框,將其的線寬設為0.5 。打開“正交”,用繪直線命令Line和偏移命令Offset,繪制會簽欄的內分割線。
命令:_line 指定第一點:7(用鼠標捕捉會簽框的左下角后,向右移動鼠標,用鍵盤輸入長度7)
指定下一點或[ 放棄(U)]:(向上移動鼠標,在與上邊框相交處,點擊鼠標)
指定下一點[ 放棄(U)] :(按Esc 鍵或回車鍵退出)
命令: _offset
當前設置: 刪除源=否 圖層=源 OFFSETGAPTYPE=0
指定偏移距離或[ 通過(T)/刪除(E)/圖層(L)]〈通過〉:7
選擇要偏移的對象,或[ 退出(E)/放棄(U)]<退出>:(用鼠標點擊剛繪的豎線)
指定要偏移的那移側上的一點,或[ 退出(E)/多個(M)/放棄(U)]<退出>:(在該線的右側任取一點)
用同樣的操作方式繪制橫向分割線,按要求的尺寸并進行偏移,偏移的距離分別是20 ,15,15,20。這樣就完成了會簽欄繪制。
(4 )繪制角標和圖標中的分割線
當圖紙需要繪制角標時,應將角標布置在圖框右上角,角標寬50 ,長12,線寬為0.25。先用繪制矩形的命令,繪出角標框,再借助“對象捕捉”功能,用Line命令繪制內分割線。
用類似的方法,按照圖標的樣式和各分割線之間的尺寸要求,繪制出圖標內的分割線。
(5 )繪制對中標志
對中標志繪在圖框線四個邊的中間,線寬為0.35 ,深入圖框內5mm。用Line命令繪制,然后選中所有對中線,將其線寬設為0.35。
18 、標注圖框中文字
圖框中的文字數量不多,字高統一設置成3.5 ,點擊菜單欄:“繪圖”菜單中“文字”二級菜單的“單行文字”命令,則命令行提示如下:
命令:_dtext
當前文字樣式:Standard 當前文字高度:0.2000
指定文字的起點或[對正(J)/樣式(S)]:j
輸入選項[對齊(A)/調整(F)/中心(C)/中間(M)/右(R)/左上(TL)/中上(TC)/右上(TR)/左中(ML)/正中(MC)/右中(MR)/左下(BL)/中下(BC)/右下(BR)]:MC
指定文字的中間點:(用鼠標點擊要輸入文字的單元格的中心位置)
指定高度<0.2000>:3.5
指定文字的旋轉角度<0>:(直接回車)
在鼠標點擊之外有光標在閃爍,現在就可以像在Word 中一樣輸入文字了,輸入完一處,雙擊鼠標,退出文字標注狀態。因為本圖框中的文字高度是相同的,所以可以利用多重復制將剛才輸入的文字復制到其他所有需要輸入文字的單元格中。這樣所有的文字標注都是相同的,需要進行編輯,使其內容符合要求。編輯的方法是:雙擊要編輯的文字,文字就變為藍底黃字的可編輯狀態,重新輸入符合要求的文字,修改完后回車確定,接著改下一處,直到全部編輯完畢。會簽欄的文字方向與圖標中的文字方向不同,在修改完內容后需要旋轉-90° 才符合要求。繪制好的道路工程圖框如圖11-7 所示。
注意:無論是復制還是旋轉文字,基點位置都要選擇文字的正中,這樣文字的位置在單元格中始終處于正中間,這樣免去調整文字位置的麻煩。

來源:測量
更多相關信息 還可關注中鐵城際公眾號矩陣 掃一掃下方二維碼即可關注

文章推薦
- 全域土地綜合整治中涉及“三區三線”局部優化的,實施方案中需明確哪些調整程序?
- 全域土地綜合整治實施方案中的資金平衡分析需包含哪些內容,如何確保資金來源有保障?
- 全域土地綜合整治實施方案中的子項目如何劃分,需明確哪些核心信息?
- 農用地整治在實施方案中需明確哪些具體目標和任務?
- 全域土地整治實施方案需達到什么深度,核心包含哪些基本內容?
- 全域土地整治實施方案編制的核心依據有哪些,需以哪些成果為工作底圖?
- 全域土地整治實施方案的編制主體是誰,需聯合哪些單位共同參與?
- 22026年專項債申報項目,需提供哪些財務佐證材料證明收益平衡?
- 無明確收益來源的項目,能否申報2026年專項債?
- 專項債項目的收益來源主要包括哪些,需滿足什么要求?




